黎林 - 首席設計師
入行時間:2008 年 職稱:首席設計師
項目地址:鏡湖園
項目面積:260㎡
項目風格:森系原木風
項目施工:山水人家裝飾
工程造價:40w
封面標題:鏡湖園260平,令人心動的森系原木風

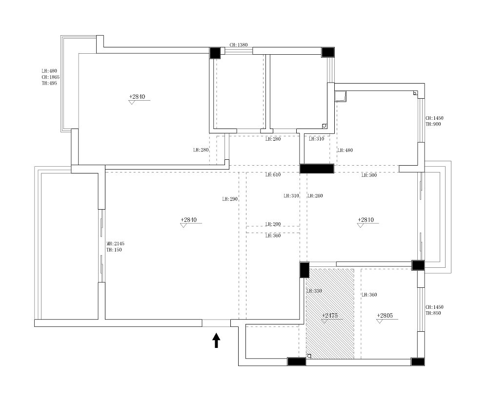
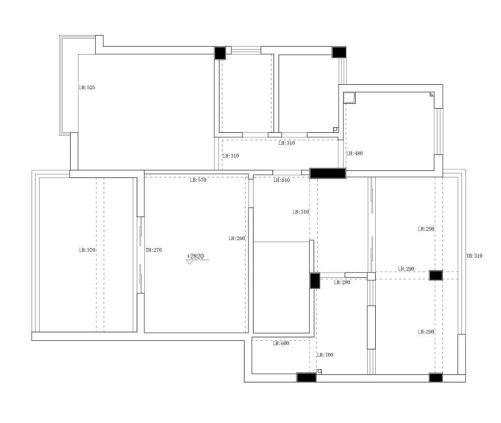
戶型解析
在快節奏的生活里,每天都會經歷各種各樣的生活壓力。本案業主則是忙中帶樂的一家三口,平時也會有老人或客人來訪,家里充滿了煙火味道。作為復式樓,自然會有很多靈活無礙的自由空間。設計師通過合理布局,實現了完善的動靜分區,家里人都能享受各自的娛樂天地。全房色調以原木色+白色為主,讓家充滿大自然的氣息,同時也將簡潔發揮到極致,無形中擴大了居室空間的視覺效果。木質所呈現出的舒適輕松感,會讓家里充滿森系般的愜意與溫情。

房屋信息:復式樓,新房裝修。

本案戶型方正,南北通透,空間格局也特別好。設計師通過規劃布置,將空間均勻分布,實現明顯的動靜分區,充分彰顯復式樓的特點,相應提升了業主的居住舒適度,且客流動線與居住動線布局詳盡合理。主要改造點在于:

一樓的改動點其實還蠻大的,包括:(1)打掉陽臺門,將整體納入客廳,增加整體采光面積;(2)原本的餐廳比較小,索性直接把墻全部打掉,同廚房一道改成開放式格局;(3)衛生間重新做了調整,做成干濕分離的樣式;(4)次臥衣帽間重新調整了開口,并借助背景墻做了隔擋。

二樓更多是靜區所在,大多數的臥室房間都在二樓。通過設計茶室、兒童生活區等空間,將休閑娛樂功能徹底解放,每位家庭成員都能在這里找到自己的舒適項目。
客廳

入戶非常寬敞,利用樓道底部空間打造了玄關端景,讓回家充滿儀式感。另一邊合理擺放了黑色鞋柜,里面擺放了一家人一年四季的鞋子,實用性更強。

打掉原本的陽臺門,將整體納入客廳,獲得極致的采光,空間面積也大幅增加。落地窗的設計,搭配奶茶色窗紗,別有一番風情。

地面通鋪的是淺色柔光磚,直接鋪滿客餐廳。超長的線性燈帶跟加長空調風口呼應,頂部設計弧形吊頂,愈加柔化了空間,同時也部分承擔了空間分區的職責。

客廳墻面滿刷青紗灰藝術涂料,淺色素淡的模樣讓人如沐春風。色彩鮮艷的大地毯鋪在正中,坐落著各式家具擺件。布藝沙發、茶幾搭配同色的單人沙發,將精致拉入生活氣息,顯著提升著居室的品質感。

淺色電視背景墻,直接電視內嵌,不占過多面積,旁邊還做了拱形門洞的造型。背景墻底部做了凹槽,成為空間設計中的一大亮點。千年木花卉的點綴,讓室內更添一份活力。
餐廳

餐廳主體色調以原木色+白色為主,給人格外鮮亮的視覺感受。除常規的餐廳布局外,還添入了島臺設計,靠墻還打造一整排儲物柜,實用功能更多,更符合業主的實際需求。

原本的餐廳比較小,梁也比較低,業主真是各種不喜歡。為此設計師直接把餐廳附近的墻盡數打掉,通透的開放式布局令色彩的碰撞更有張力,愈加契合柔和溫馨的餐廳氛圍。

島臺的臺面設計一面是洗手池,增加了更多靈活性。另一面則銜接了實木桌面,搭配高腳椅,打造極佳的應用場景。這里可以作為吧臺,一側的人悠閑備餐,同時與另一側的人溝通交流,烹飪的時光顯得溫情又從容。

餐廳頂面還做了木條吊頂的設計,有著天然的親和性,帶給業主舒適自然的感覺,造型也兼具靈性。同時還打了一整面的餐邊柜墻,白色柜面更顯潔亮。整體擁有豐富的儲物空間,相應緩解了業主的收納壓力。

餐廳家具的擺設也極富特色,家里經常會有人來參加聚會,因而選擇的圓桌造型。這不僅符合家里中式的用餐習慣,還有著“團團圓圓”的寓意。極具造型感的餐椅選擇,也成為餐廳的一大亮點,讓空間更有腔調。
廚房

原本封閉式廚房徹底摒棄,改成開放式,這樣能更好地同島臺、餐廳聯動。櫥柜布局呈U型,精細化利用臺面空間。黑色雙開門冰箱放在開口處,不僅具備跳色效果,實際應用更方便。

廚房沿用白色系櫥柜,點綴精致把手,有著一種清爽氣息。置物架里擺放著各色果蔬,加上木色百葉簾的應用,將原木舒適進行到底。
樓梯
樓梯采用折梯樣式,樣式簡潔,靈活性強,非常適合復式戶型。通過選用木質材料做裝飾,其溫潤的觸感讓人感到舒適。二樓更是做上墻暖,更好地實現了節能保暖。

在此基礎上,吊頂同樣做了弧形造型,更有空間層次感。搭配復古吊燈,古樸的造型精致的工藝,更好地提升了樓梯裝飾效果。
主臥
主臥空間格外寬敞,映入眼簾的便是地面整鋪的淺色地板。搭配大面積白墻,原木色+白色,超有溫馨感。

其他的床飾擺件,如床套、窗簾等盡可能選用咖色,自帶一種淺淺的溫柔。臥室飄窗區也保留下來,直接延伸到床頭,省去了床頭柜的存在,好看又好用。

值得注意的是,臥室里還內置了衣帽間。整體置入弧形門洞后,更好地美化空間。紗簾的應用,則添一份趣味美感。
次臥
次臥布局幾乎與主臥無異,為數不多的區別在于:房間選用的是吸頂燈,而非復古吊燈,不僅顯得簡潔,空高也會高很多。

床飾方面也用到更為活潑的色調,彰顯出靈動曼妙的意韻??脖撑浒咨尘埃p眼皮吊頂拉升層高,為空間增添清新感,營造出舒適的睡眠環境。

墻面同樣做了拱形門洞造型,自不必說衣帽間就藏在里面。三面環繞的白色柜體,擁有絕佳的儲物空間。依靠窗臺還打造了書桌柜,平時的工作學習都會在這里開展。

兒童房空間足夠充裕,后期完完全全可以當做一個“樂園”。鮮艷的橙色床背、夢幻的紫色窗簾、萌動可愛的玩偶,讓兒童房顯得格外溫馨浪漫,每一個細節都充滿呵護與關愛。

加之大面積的留白處理,給人以清新純凈、明媚鮮活之感??繅€打造了整面衣柜墻,造型簡約至極,不加任何裝飾的柜門設計,很好地迎合了整體空間的簡約基調。
二樓茶室
在過道公共區域開辟出一個品茶區,整體設計偏休閑,地面鋪貼實木地板,搭配頭上弧形頂,強化空間通透感。

茶室的家具擺設頗有些古色古香的韻味。木質茶藝桌搭配橡木椅,加上類木樁凳的點綴,呈現出悠然自得的茶室環境。身側還擺放了古樸造型的展示柜,兼具美觀實用性。

看似極簡的結構造型,在精湛技藝的呈現下,展示出舒適生活的姿態。業主休息的時候隨意翻翻書,喝喝茶,讓這方寸之地成為免于外界煩惱的桃源。
衛生間
樓梯后還設計了洗衣房+衛生間區域。專門的洗衣房配備了通頂柜體,尺寸也是提前測量好的,正好裝放了洗衣機和烘干機,空間利用率大幅提升。

衛生間地面用米白色的素色磚,搭配水磨石復古墻面磚,讓空間更顯通透。臺盆定制高低錯落,臺上盆的設計更是將顏值完美提升?;⌒窝b飾鏡美觀大氣,添入燈帶后,氣質拿捏地特別好。

衛生間同樣實現了簡易地干濕分離。淋浴區是用透明玻璃作為隔斷,沒有全封閉,這樣一來很好地同洗漱臺、馬桶區區分開來。馬桶設計在淋浴區的外面,可以避免淋浴時出現馬桶被淋濕的尷尬。
保利華府輕奢風格裝修效果圖
海倫春天別墅新中式風格裝修效果圖
保利心語125平美式風格裝修案例欣賞
置頂—— 知精準報價 避裝修深坑 ——
平均七年以上的設計經驗資深設計師為您服務