項目地址:頂琇晶城
項目面積:130㎡
項目風格:奶油風
項目施工:山水人家裝飾
工程造價:19w
封面標題:頂琇晶城130平,老房爆改成網紅奶油風

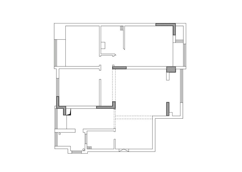
戶型解析
甜美奶油系,撩撥我的慵懶隨意。本案屬于老房翻新,業主要結婚了想當做婚房居住,家里暫時是兩口人生活。同設計師交流過后,得知男業主喜歡極簡風,女業主喜歡奶油風。而這兩種風格是可以相互成就的,設計師通過捕捉要素,融會貫通,呈現出寬敞大氣的空間格局。再加上深淺色調的搭配及家具擺件的極致組合,由此打造出柔和溫馨的奶油系家居,其中滿載著業主對美好婚姻生活的向往。
房屋信息:三室兩廳,舊房改造。

本案由于是老小區,公攤面積不大,每個空間足夠寬敞。雙陽臺+三房兩衛的格局,動靜分明,采光充足。冉而戶型方面也存在些許不足,包括:客餐廳有幾個承重柱不能拆;入戶門廳比較暗;廚房功能分區不明顯;陽臺沒有很好利用等。

為此設計師對戶型重新進行調整規劃,即(1)客餐廳做開放式布局,中間墻體做了圓弧造型;(2)將客廳陽臺全部釋放,并融進客廳空間,整體橫向拉長,面積變大,并縱向與餐廳連通,共享同片采光;(3)拆除廚房推拉門,維持廚房和外界的聯系,后嵌入雙開門冰箱,騰出更多空間;(4)小陽臺擴充到廚房,作為洗衣房使用,陽臺觀景互不打擾。
客廳
原先的客廳相對老氣,采光也稍顯不足,因而整體做了調整。通過拆掉推拉門,將陽臺區域全部釋放,同樣打開了客廳空間。整體橫向拉長,顯得客廳更寬敞,采光更豐富。

客餐廳開放式布局,給人一種寬敞大氣的感覺。全房無主燈設計,氛圍感強烈。平頂的造型,看上去清爽又干凈。

由于沙發和餐桌區域是連通的,中間的半截墻體給做了圓弧造型。這樣一來,很好地消除了空間邊界感。家具的擺放也符合業主心意,落地燈光的照射下,家人互動連通的心也變得愈加緊密。

因為是十幾年前裝修的房子,背景墻造型已完全不符合當今的審美需求,再加上缺乏足夠的功能性,這些部分都需要及時調整。電視背景墻用了近兩年比較流行的巖板材料,簡約大氣。搭配木紋格柵,增添豐富的層次感。

原先靠墻區域打造了一個吧臺區,挺華麗的感覺,但實際利用率并不高,占的位置也多。為此由奢入儉,重新改成了展示柜,并用金色玻璃門作為點綴。內嵌燈帶,觀感非常不錯。
餐廳
原先的餐廳比較簡陋,就一張餐桌孤零零地立在那里,也沒有任何的柜體依托。為此通過調換材料,重新規劃區域,墻面裝飾由墻紙變成了木質板。燈具也由小燈變成了簡約大氣的吊燈,餐廳的樣貌發生翻天覆地的變化。

不止于此,由于緊靠入戶區域,為提供更多的收納實需,旁側還打造了玄關柜兼餐邊柜。一門到頂,咖色柜面,盡顯溫柔愜意。另一邊則是客衛,干濕分離,多是冷光分布。冷暖燈光交織下,營造極佳的氛圍感。

餐廳的整體布置略顯簡約,巖板餐桌搭配灰色餐椅,干凈更上檔次。目前是兩口子居住,所以用餐也更為方便。一房兩人,三餐四季,度過甜蜜的小時光。
廚房
原先的廚房是封閉式廚房,空間感和采光都不太行。為此將推拉門整個拿掉,做成開放式布局。整個空間視野瞬間打開,同時填入內嵌式雙開門冰箱,實際應用更方便。

櫥柜是常規的L型布局,烹飪區和臺盆區分布有序。白色吊柜配灰色地柜,簡約又不失時尚。業主可以根據個人習慣收納廚房用品,廚房臺面選用石英石臺面,硬度強,耐臟。

實際上,廚房內部還擴充進一個小陽臺,目前是當做洗衣房在使用。就功能性而言,同陽臺觀景互不打擾。整體墻面用到奶油色墻板,美觀之余又好做清潔。
主臥
奶油色主臥自帶柔美濾鏡,色調單純而不單調。整體空間寬敞大氣,無主燈+平頂,無限拉伸層高。地面通鋪人字拼實木地板,更添一份質感。

原先房間的飄窗區域被整體保留,室內空間在視覺上得以延伸。飄窗相應實現了簡化,顯得不那么冗雜,并做了一個通鋪的坐墊。屆時放幾個抱枕,閑暇的時候可以坐在上面看看書、玩玩手機都是蠻好的。

由于業主家新婚燕爾,所以選用的是干凈的紅色床品。再加上“囍”字當頭,搭配背景的咖色條紋靠包,有著不一般的風情與浪漫。
主臥衛生間
主臥衛生間實現了干濕分離,極大程度方便了居家實用。浴室柜做了墻排懸空,易于清潔打理。臺上盆的設計,簡單美觀,將衛生間顏值拉高。

濕區內部也重新做了改造,將馬桶區調整到原浴室柜區域,跟淋浴區之間保持足夠多的距離,這樣一來也沒有必要再做隔斷,省材省力。同時將老舊的浴具衛具全部替換,尤以浴缸最為突出,舒適度和美觀度都大幅提升。整體采用米色瓷磚,墻磚一體,讓空間更顯通透。
次臥
次臥布局稍顯簡單,目前是當做客房在使用。房間里有超長的飄窗設計,既有利于進行大面積的玻璃采光,又保留了寬敞的窗臺,可利用的地方變多了,視野也愈加獨到。

當以后有了寶寶,這里可能會調整為兒童房。所以整體配色以米色為主,相對輕松健康,也沒有過多物品的堆積,給人的感覺非常恬淡隨意。飄窗上的小熊玩偶更是吸引了全部視線,讓人頓覺十分可愛。
書房
12平的書房,活動范圍很大??看安贾昧藨铱諘?,打掃衛生非常方便。平常的時候業主也會來到這里辦公學習,沒有干擾與阻力,極大程度提升整體效率。

除此之外,房間里還打造了兩面對立的柜墻。柜子采用純色烤漆門板搭配金色拉手,質感整個拉滿。有些閑置的物品或衣物會放在里面,滿足更多的收納實需。

東湖雅庭美式輕奢風格裝修效果圖
保利華府輕奢風格裝修效果圖
新希望錦粼九里130平奶油風格裝修效果圖
置頂—— 知精準報價 避裝修深坑 ——
平均七年以上的設計經驗資深設計師為您服務