項目地址:富強天惠園
項目面積:123㎡
項目風格:現代簡約風
項目施工:山水人家裝飾
工程造價:16.3w
封面標題:123㎡經典黑白灰,白衣天使的簡約新家

本案是當做婚房來裝修,未來是一家三口居住。男業主是一位項目經理,工作比較繁忙,而女業主是一名白衣天使,可能是自身職業的緣故,她格外喜歡簡單素雅的東西,于是家里定調簡約風格。全屋色調也以黑白灰為主,輔以部分亮色的點綴,增添生活更多鮮亮之意。同時結合業主的居住習慣和功能訴求,重新調整了空間結構,客廳、廚房、臥室的尺寸得到擴充,更好地滿足業主的實際生活需要。開闊通透的室內空間,從四面八方吹來陣陣涼風,不禁讓人心曠神怡。

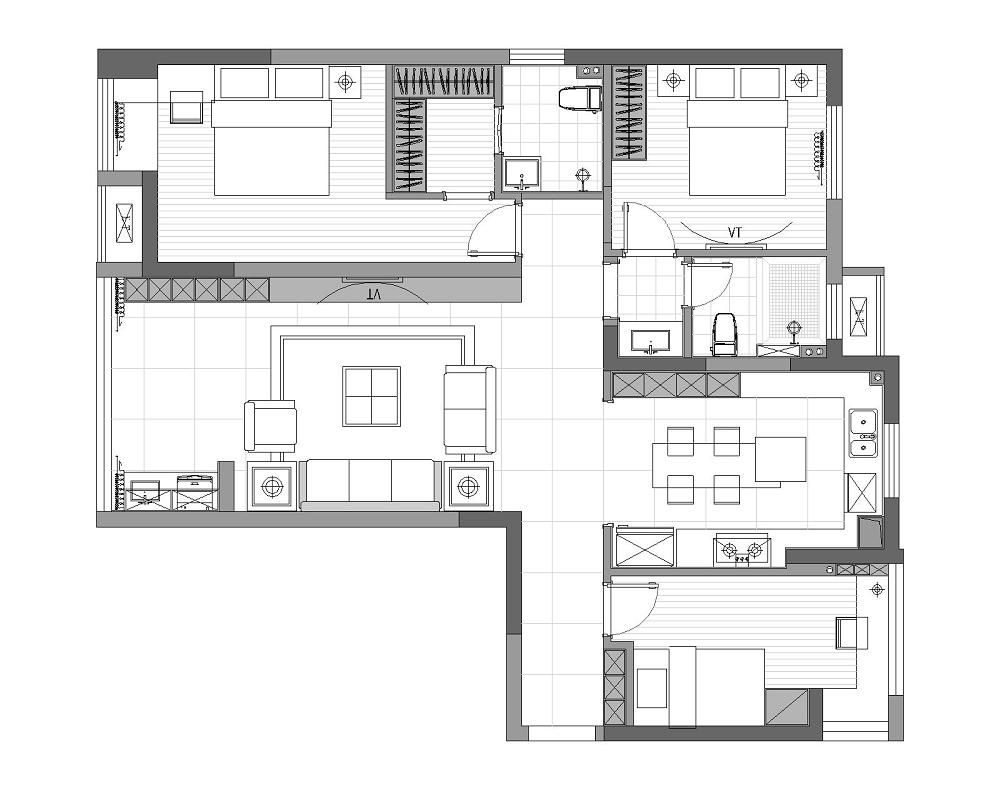
房屋信息:三室兩廳,新房裝修。

本案戶型南北通透,空間優越,為進一步貼近業主的生活習慣,對原戶型做出調整改變,主要包括:
(1)打通陽臺和客廳,相應擴充客廳的生活面積,同時有效增加日照采光;
(2)原廚房面積比較小,改造成開放式布局,能夠更高效地使用餐廚空間;
(3)主臥做成套間的格式,并重新調整了主衛開門,利用L型衣柜實現動靜分區;
(4)書房連結小陽臺區域,并定制了超長書桌臺面,方便家長陪讀。
將陽臺區域包入客廳,迎來充沛采光的同時,巧妙解決了原始客廳局促的問題。簡約雙眼皮吊頂的設計,搭配方形吊燈,更好地還原層高,相應拓展立面距離感。而地面通鋪淺灰色地磚,顯得通透而自然。

整個空間色調統一,應用奶油色云朵沙發,當光線鋪灑下來,化身溫柔體態,如臥云端般舒適。橘色小馬椅、輕巧茶幾邊幾,呈現出不同的色彩過渡。旁側還有一頂母子熊落地燈,憨萌可愛的樣子,托盤多重置物,照明燈光璀璨,具備極強的觀賞價值。

家居搭配中適當融入低飽和度的色彩,能創造出溫馨的家居空間。背景墻面用的是淺灰色色漆,充滿著質感。墻面還有帶led燈的裝飾畫,燈光亮起,營造極強的氛圍感,給空間無盡的綺麗遐思。

電視背景用的是巖板材質,有著豐富的紋理感。鏤空黑色地臺自帶美觀外表,打掃衛生也很方便。配上黑色彩電,實現了深淺色的搭配組合,避免色調的單一,營造極佳的層次感。

電視柜延伸至吊頂區域,打造4+1的到頂展示柜和收納柜,和整體空間做了一個非常好的銜接。里面裝扮了各種色調的暴力熊擺件,顯得格外fashion。
原先的廚房面積過小,不便于業主烹飪操作。為此直接將空間打通,將餐廳和廚房做在一起,形成開放式的布局,整體的聯通性也大幅提升。

右側則是餐廚空間的餐邊柜兼茶水間。通體黑色的到頂柜體,保有一定的實際儲物量。同時利用橘色做了部分跳色處理,顯得更為靈動。島臺臺面還布置了一個隱藏式的升降插座,隨時都能無線充電。

吊燈與線性燈帶相結合的燈光布置,極富設計感。餐桌是現場DIY的,做成餐桌+島臺的樣式。高低臺的設計,符合人體工學。搭配著色彩各異的餐椅,平添更多裝飾的趣味性。

餐廳的用色幾近簡單,黑與白的搭配,讓用餐沒有任何的負擔。無論是享用美食,還是閱覽雜志,都能給人帶來極佳的體驗感受。家家都有人間煙火,歡聲笑語充斥著整個空間。
超大U型廚房,有著接近5米的操作臺,完美實現洗切炒功能。由于是餐廚一體化,這里既是餐廳也是廚房??臻g內部保持空氣流通,顯得通透又敞亮。

櫥柜+吊柜的布置,有著強大的收納能力。整體用到膚感膜材質,呈現簡約高級的美感。配色方面統一用黑色進行搭配,襯著滿墻白磚,顯得更有層次感。同時一側將冰箱巧妙地納入空間,以滿足日常使用的需求。
左客廳右餐廳的布局,空間格外通透,過道區域也做了精巧的設計。盡頭擺放了一幅裝飾掛畫,文藝范十足。順帶著打上暖光,營造天然的溫煦氛圍。

主臥的背景色改成了更為簡約的淺灰色系,讓人感覺更加靜謐和諧。加之局部亮色點綴,營造良好的睡眠氛圍。飄窗區域被保留下來,可坐臥可儲物,功能靈活多變。

主臥應用白色軟包床頭,搭配著金色裝飾條,顯得精致又時尚。一側是家里的梳妝區域,白桌+智能鏡+花瓣椅的配置,方便業主精心打扮。另一側則是床頭柜外加裝飾吊燈,作為靈動的氛圍燈光,照亮生活的每一處角落。

為了能充分利用臥室空間,中間用L型的定制衣柜充當隔斷,實現動靜分區的效果。外側墻面用淺灰色漆做了涂刷,同整體環境保持一致。這樣既不讓空間變得七零八碎,還顯得愈加柔和。

L型的到頂衣柜,有著豐富的儲物面積。配色參照公區,依舊選擇的黑色,看上去經典大氣。另一邊則是主衛的開門,整體三平米,能夠滿足日常衛生所需,且易于打理。
次臥目前是當做客房在使用,整體盡可能地簡約自然。放置了一張1.2米的床,搭配白色軟包床頭,睡覺更安逸。小小的床頭柜,更是能補足雞肋角落存在的問題,靈活性和實用性也大幅提升。

與此同時,靠墻打造了黑色到頂柜體。同周圍的白色環境互為照應,反而展現出一種簡約、高雅格調。將柜子放置在墻角,完美利用了轉角空間,發揮收納儲物作用的同時又能減少占地面積。
主衛面積雖然只有三平米,但基礎功能依舊得到保障。懸空的浴室柜設計,防止跟地面水汽相接觸,同時做清潔的時候不存在衛生死角。

衛生間墻面做了墻裙造型,上淺下深,更多營造了空間層次感。衛生區域各部分合理分布,讓空間得到了很好的利用。
紅軍村180平躍層美式風格裝修效果圖
龍湖云峰原著150平現代風格裝修效果圖
花樣年花樣城84平中式風格裝修效果圖
置頂—— 知精準報價 避裝修深坑 ——
平均七年以上的設計經驗資深設計師為您服務