項目地址:梧桐花園
項目面積:96㎡
項目風格:法式復古風
項目施工:山水人家裝飾
工程造價:13.5w
封面標題:看膩了簡約風?武大學霸夫婦的法式復古新家獲贊無數
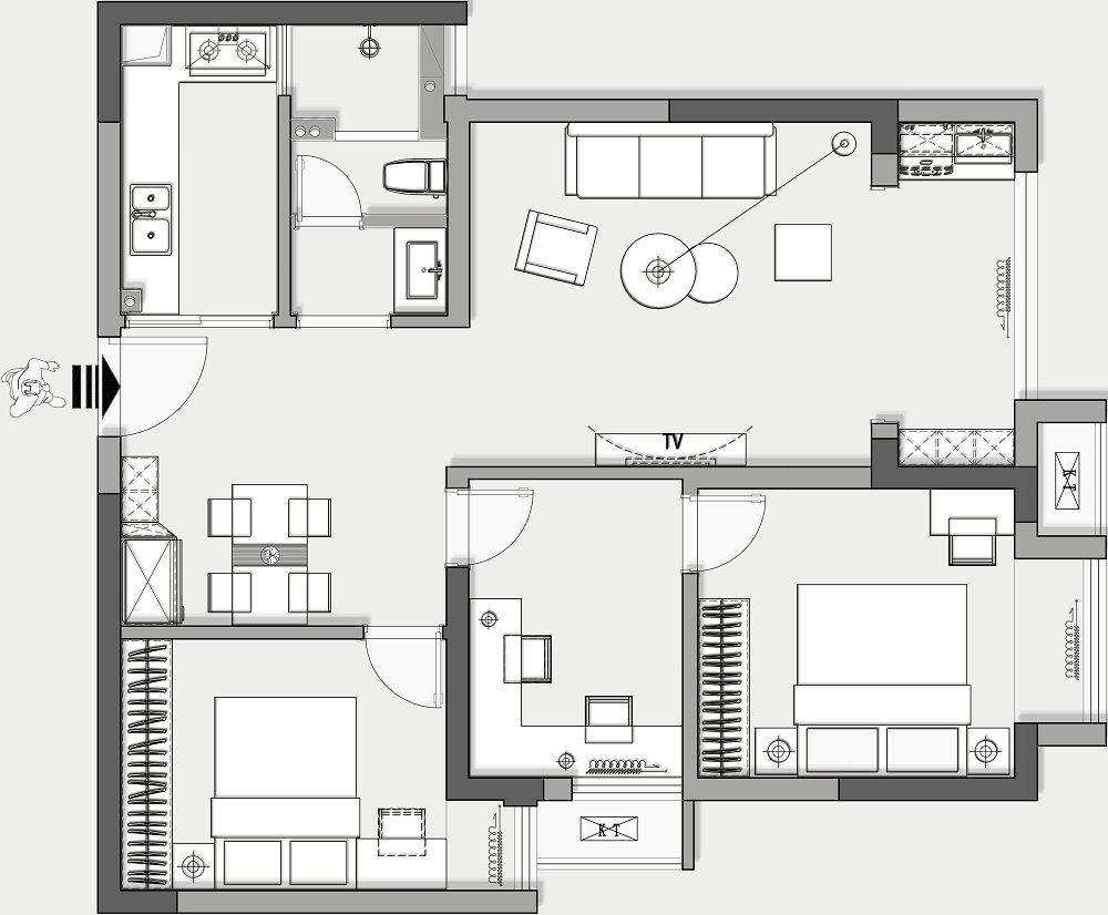
戶型解析
這是一個專屬于小兩口的典雅婚房。他們都是大學博士在讀,妥妥的學霸之家。又因為業主平時都忙于做實驗、搞科研,幾乎很少時間跟房子打交道,就連選定裝修公司也是全程網聊,簽完合同便處于全程托管的狀態,施工選材也是在網上操控。由于無法蒞臨現場,所以對新家充滿了期待,完工后看到家的第一眼便愛到不行。

本案的設計風格是女主人最喜歡的法式復古風,在布局上重點突出軸線的對稱,色調以白色為主,綠色作為點綴,彰顯優雅浪漫的情調。細節方面則運用雕花、線條等,勾勒出自然舒適的雅致空間,每一處角落都是理想的模樣……

房屋信息:三室兩廳,新房裝修。

本案房型方正,南北通透,采光也不錯。戶型主要的改造點在于:
(1)原戶型廚房陽臺作用有限,加上衛生間很小。于是將廚房陽臺擴入到衛生間,以增加衛生間的活動面積;
(2)原主臥開門設置在電視背景墻處,顯得墻面不完整。于是重新調整了開門,并將主臥書房做成套間,以保障整體完整性。
(3)客廳面積相對有限。于是打掉陽臺處多余墻體,將兩者連接起來,以增加采光及活動范圍。
客廳
通過將陽臺梭門打掉,客廳與陽臺與之相連,整體的活動面積大幅增加。尤其是門洞處做了拱形的設計,柔化的處理更好地平衡室內的直線條。復古綠窗簾+絲綢帷幔的選用,則添點了更多色調與真意。

客廳的設計元素源于法式宮廷風格,營造的氛圍感更是一絕。珍珠水晶吊燈高高懸掛,水晶與玻璃相互交接,演繹光與美學的藝術靈韻。素潔的墻面做了線條、雕花的勾勒,畫出豐富層次,優雅而精煉。幾幅帶框古典畫作的點綴,無形之間增添了更多文化底蘊。

業主家的家具均在網上選購,選用單品比較貼近法式的風采。西西里橙真皮沙發有著避風港般的大大擁抱,給人極強的安全感和舒適感。精巧的茶幾款式新穎,讓客廳多了些許靈動與層次?;ò晟嘲l、落地燈、地毯的搭配,浪漫清新之感撲面而來。

電視背景細節方面運用了雕花、線條,顯得更為高貴優雅。黑色電視柜搭配上明亮剔透的普白長虹玻璃,有著一種天然的神秘尊貴感。旁邊的五斗柜有著翻門+四抽的收納分區,功能性滿滿。

面容恬淡的托盤天使汲取名畫中的雕像元素,仿舊的設計造型,有著濃厚的復古文藝氣息。
餐廳
石膏線條裝飾的墻面干凈整潔,雕花的設計更增添了美感??臻g以純白為主調,在墻面上做跳色處理。自上而下的牛油果綠,無疑符合法式崇尚自然的觀念。

餐廳一側打了到頂的餐邊柜墻,儲物收納依然在線。這里安裝有壁掛式飲水機,為健康生活保駕護航。一邊騰出部分空間,剛好容納雙開門冰箱的位置,拿取也比較方便。

高品質的飲食生活,需要朋友和家人的共同參與。巖板餐桌色澤天然,為所有的歡聚時光提供了更廣闊的天地。貝殼椅的選用,更是讓人坐的舒適安穩。
廚房
廚房盡管面積不大,卻也成為最獨具韻味的一個。地面鋪貼綠色小花磚,這是業主在市場上精心挑選后的結果。墻面則是大面積的長條小白磚,層次感極強。

櫥柜布局呈L型,洗切炒功能完備。櫥柜則是膚感膜的綠色柜體,讓人一眼便覺清爽自然。身處這樣的烹飪環境,內心一定特別歡愉吧!
主臥
實際上,主臥做的是一個套間的格式。應業主的強烈要求,打造了獨立書房,并將其納入到主臥空間內,整體活動面積大幅擴充。這里主要用的是墻桌,不沾地,功用更足,也更方便做衛生。

L型的書桌臺面,能夠輕易容納兩至三人辦公學習,彼此之間和睦共處。摘掉咖色窗簾,還可以呼吸室外清新的空氣。墻面做了部分跳色處理,留出一些呼吸感,使整個視覺效果不會過于呆板、生硬。

偏草綠色系的飽和度,同時還融入了一些黃調,顯得溫和而清爽。在此基礎上,墻面還做了線條的修飾,愈加豐富了空間層次。通過布置飄窗,保留了一處安寧休閑之地,懸掛的窗簾更有浪漫法式的情調。

整體軟裝配飾也多以綠色為主,給人美的享受的同時,大展治愈系的魅力。 除此之外,這里還有設計師的巧思。暖氣片被巧妙地安置在窗臺以下,跟床體高度持平,極大程度保障了遮掩效果。

在頭頂水晶燈的照拂下,有著斑駁的光影,所營造的氛圍感更是絕妙!
次臥
次臥的布局簡直跟主臥“一脈相承”,墻面做了一定的分色。當白色遇到牛油果綠,自然清新的效果無限被放大,給人安靜又很有生命力的感覺。

靠床還擺放了一個書桌臺區域,以滿足業主生活學習的需要。同時次臥保留了部分窗臺,作為書桌的延伸,增加更多的使用范圍,體現了更多生活便利性。

床頭柜上也精心擺放了雕塑擺件,在水晶吊燈的映照下,仿佛散發著圣光,溫馨且浪漫。
衛生間
衛生間則有效實現了干濕分離,保障了良好的衛浴環境。干區則是小花磚上墻,視覺上更顯靚麗。燈光照明也極具特色,不是傳統的燈帶或射燈,而是三頂造型精美的裝飾燈,不禁讓人眼前一亮。

濕區通鋪墻地一體磚,讓空間顯得更為通透。淋浴區內部還進行了壁龕設計,滿足更多儲物收納的需求。衛生間的布置,也極大程度方便了居家實用。
鵬湖灣180平中古風格裝修效果圖
匯悅天地新中式風格裝修效果圖
愛家名校華城現代簡約風格裝修效果圖
置頂—— 知精準報價 避裝修深坑 ——
平均七年以上的設計經驗資深設計師為您服務