項目地址:一江璟城
項目面積:140㎡
項目風格:現代簡約風
項目施工:山水人家裝飾
工程造價:22w
封面標題:140㎡六口之家,全屋收納實力簡直太強了

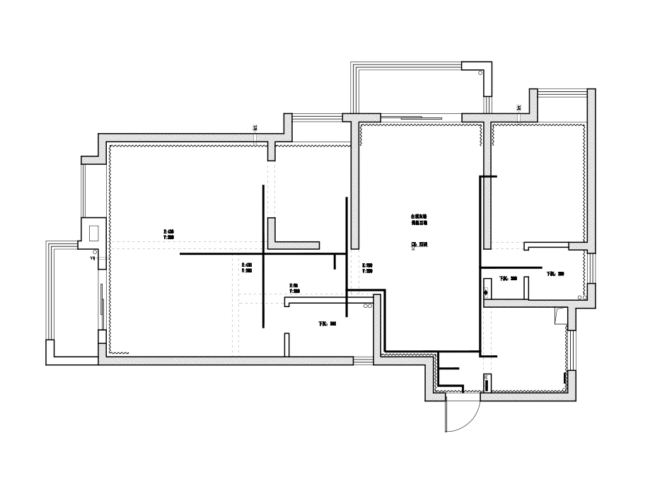
戶型解析

本案屬于新房裝修,但業主屬于老客戶了。之前的房子是三房,當時只有寶貝女兒,但目前隨著小兒子的呱呱落地,三房格局已明顯無法滿足這么一大家子的生活需要,四房的購買提上日程,于是就有了這個鮮活的案例。男業主常年在國外工作,女業主則是注冊會計師,各自工作都比較忙碌,由此一來,就需要爺爺奶奶幫襯孩子們的成長,家里的常住人口就變成了六個。所以對于設計師而言,需要考慮到各家庭成員的生活需求。通過應用白色、灰色及原木色等鮮明色彩,給人簡潔干練的視覺觀感,以此營造出溫馨愜意的居室生活氛圍,符合三代同堂的包容性。同時最大化規劃了收納的儲物量,更好滿足一家三代的實際生活需要。

本案房型相對方正,鑒于多人口的居住需要,四房格局板上釘釘,整體空間就顯得格外有限,于是做出如下調整:(1)打通客廳、陽臺處的墻體,獲得充足的采光視野及活動面積;(2)主臥打掉飄窗,增加一定的使用面積,同時反哺更多的實際收納空間;(3)原先主臥套間里的衛生間被隔了出來,作為小孩及業主的公共衛生間,進而方便家庭成員的實際需求。
客廳
客廳整體以灰白色系為主,加以原木色的點綴,給人簡單清爽的感覺。仿大理石紋路的大磚通鋪到陽臺,整體的采光及視野都很不錯??蛷d同樣應用著無主燈設計,軌道燈+射燈+燈帶的配置,無論是照明燈光還是氛圍燈光,無形之間都增添著生活質感。

沙發背景墻做了留白處理,顯得比較整潔自然。業主在此基礎上用了幾幅簡約畫加以點綴,整體配色讓空間愈加融洽。而沙發更是破格地選用了四人座的真皮沙發,滿足一大家子人的坐臥需求。巖板茶幾搭配木紋柜面,高級感十足。旁側還有一個小小的橘色沙發,那是孩子休息的地方。值得注意的是,吊頂處也做了一定的設計,頂部圍了一圈金屬線條,增加了整體層次感。

藉由打通陽臺墻體,將陽臺與客廳融為一體,同時增加了更多的活動面積。作為晾曬陽臺,洗手池+洗衣機的標準化配置,極大程度滿足業主的生活需求。除此之外,陽臺、客廳之間的墻體做了類似木紋的造型,白色陽臺自帶的冷,與溫軟客廳的暖相互應襯,平添更多品質生活的格調。

電視背景墻則用到木飾面的材質,搭配著頂部暖光,呈現無與倫比的溫潤氣質。電視柜款式的選擇也充滿質感,應用于此,相當地合適。同時業主還斥重金采購了海信彩電及投影儀,以此獲得極佳的觀看效果。
餐廳
客餐廳處于同一空間內,所騰出的通道區域足夠寬敞。孩子甚至能夠在這里嬉戲玩耍,往來動線也很通暢。餐廳被合理放置在玄關身后,方便業主即可入席。尤其是靠近餐桌的墻面,實際上是打了一面餐邊柜墻了的,開口更傾向于過道走廊。七至八平的內部空間,擁有相對充裕的儲物環境。白色亮光柜門+金屬柜門的配置,造型和功能性兼備。

餐廳白墻的布置,顯得格外整潔。留白的處理,給了更多幻想的余地。墻上掛著靚麗的簡約畫,加上太陽擺件的點綴,顯得格外鮮亮。

因為是一個多人口的大家庭,對于餐桌餐椅的硬性需求比較高。超大臺面的巖板餐桌,外加五到六把皮質餐椅,完美容納各位家庭成員。餐椅甚至還做了墨綠色的分色,整體色彩愈加豐富。
廚房
廚房面積不是很大。通過采用三聯動門的設計,增加采光的同時,開啟面積最大化。得益于此,業主獲得相對安寧靜謐的烹飪環境。

U型整體櫥柜根據廚房實際空間面積進行量身定制。大面積用到原木紋柜面,呈現自然的溫潤與樸拙。頂柜亮面的材質,顯得室內熠熠生輝。

功能分區更是落到實處。烹飪區、臺盆區等分布合理,操作起來也格外方便。而右側多出來的小塊區域,則被安裝了烤箱及微波爐等用具,一部分扮演著西廚的功能。
主臥
從公共區域到私密空間,需要經過過道走廊。一邊是衛生間、主臥,另一邊是小孩的房間。原本衛生間是套在主臥里面的,但考慮到沒必要讓兩個小孩上衛生間走太遠,就將主臥衛生間移了出來,變成公共衛生間。

走廊頂部吊頂做了弧形造型,搭配著足以掩蓋整片吊頂的超大燈具,照明格外通透。墻面更是掛了一幅鮮艷的裝飾畫,金色花邊的點綴,高級感十足。
主臥大面積用到暖色調,讓原本單調的室內空間增添了更多濃郁的色彩,簡約而不失高級。通過拆除內飄窗,獲得更多靈活的使用空間。加之落地窗的設置,整體采光愈加充裕。

床頭背景墻用淺色墻布裝點,顯得格外清新亮麗。整體床飾也以粉色系為主,帶來更多的生機與活力。加之部分天藍色的點綴,以此營造溫馨舒適的睡眠環境。兩頂金色壁燈對稱分布,適時還會發出氤氳的燈光。
作為主臥空間,自然對實際儲物擁有強烈的需求。通過最大化規劃了整體收納的儲物量,直接在旁側打了一面到頂衣柜墻。白色柜面不僅整潔還美觀,儲物空間也得到充分保障。

除此之外,從進門口開始,從頭到尾都是整面的柜墻,儲物面積足足有十來平米。前半部分是黑色展示柜,方便懸掛隨身衣物,同時還擺放著各種裝飾品。后半部分則是有著白色柜面的衣柜,以此滿足業主相應的儲衣需求。
次臥
滿屋的粉紅掩不住靈動的氣息,這里自然就是小女兒的房間。全房鋪貼粉色圖案的墻紙,顯得格外青春可人。旁側還有專門定制的書桌椅,原木的材質,盡顯干凈整潔,一定程度上打造了輕松愉悅的學習環境。

而這里是小兒子的房間。偏綠色的墻紙造型,擁有蔥郁的活力與生機。通過保留飄窗位置,該處也成為小孩休息玩耍的場所。為靈活應用室內空間,特意購買了多功能床,上面是柜體,下面是床體,功能相對齊備。

而這里是老人房,沒有做過多的修飾,整體給人的感覺,就是干凈而純粹。全房墻面鋪貼淺色墻布,搭配著壁燈暖光,呈現溫暖閑適的特質。通過保留房間飄窗,不僅可以當作休憩之地,還能實現部分儲物的功能。

衛生間
這里的衛生間更多是老人特用,因為離老人房、廚房比較近,方便老人起夜及照顧到家里的日常生活。衛生間通過實現干濕分離,有效維護了良好的衛生環境。灰色浴室柜+墻面置物架的配置,略顯清麗之余,還擁有足夠的儲物空間,放置一些生活衛具格外方便。

中建湯遜湖壹號108平三室兩廳輕奢混搭風格裝修案例實景拍攝
新長江廣場現代風格裝修效果圖
新中式裝修效果圖案例
置頂—— 知精準報價 避裝修深坑 ——
平均七年以上的設計經驗資深設計師為您服務