項目地址:龍湖春江酈城
項目面積:135㎡
項目風格:現代中式風
項目施工:山水人家裝飾
工程造價:20w
封面標題:135㎡現代中式風,難以言表的雅致,我想立馬搬進去!

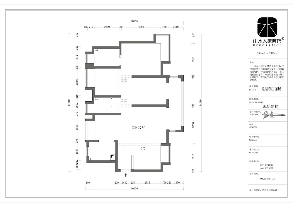
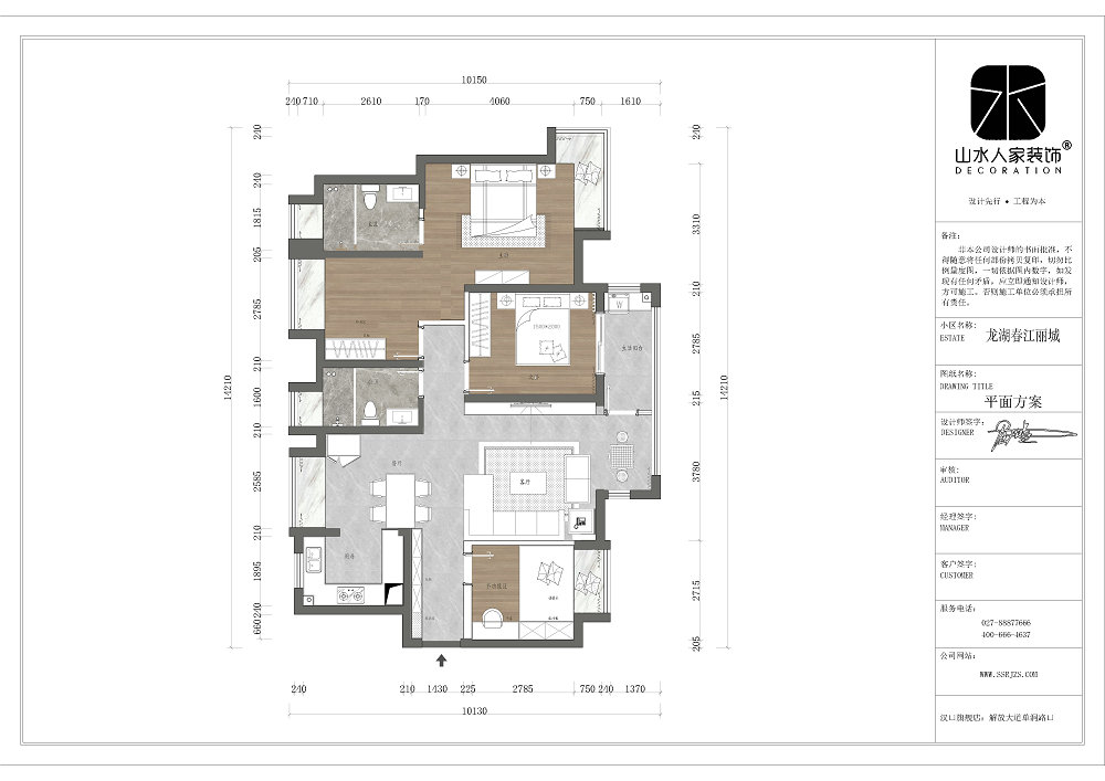
戶型解析
本案是自住改善住房,家里是一家三口,有剛出生的小寶寶,父母偶爾來住。男業主從事房地產行業,對于房子裝修有很多想法;女業主作為一個新時代女性,卻傾心于中國風,但同時又不希望新家過于傳統。設計師根據業主喜好,將房子整體風格定調中式輕奢風,結合現代的部分特色,以此形成了去繁化簡的現代中式。整體配色以輕度米黃和灰色為主,香檳金屬作點綴,這樣的裝飾造型作為承接中式和現代的載體最為合適不過。

因原戶型比較固定,是四室兩廳兩衛的格局,且大多數都是承重墻。再結合業主對于光源、環保用材、收納空間等方面的諸多需求,于是做出如下戶型調整:(1)入戶即打造三米長到頂鞋柜,滿足業主一定的儲物需求;(2)客餐廳做的是二級頂,搭配燈帶、配色射燈、筒燈及一些輔助光,組成的光源相對柔和,比較符合業主心意;(3)主臥納入其中一個臥室空間,做成套間的形式,并擴充了衣帽間空間。

玄關
女業主審美要求比較高,即便是收納方面也要重點突出。進門處做了一排三米長的超大鞋柜,直接到廚房外墻邊緣。超高尺寸,一柜到頂。整體線條干凈利落,設計超級帶范。前置區域是傳統的鞋柜+玄關柜的布置,自動感應燈的運用,實現一部分的燈光照明;中間則是大面積的置物柜墻,剛好正對著次臥門;后面則是展示柜,格子化的功能劃分下,裝飾物有條不紊,錯落有致。搭配著內部燈帶,滿滿品質感。

客廳
客廳配色以輕度米黃色為主,香檳金屬作為點綴,給人非常目眩的感覺。由于業主不想要過亮的光源,于是頂部做的二級頂,并用金屬線條做了勾邊。二級頂是集電器、模塊化連接,可以做到一步到位,不會出現間隔的縫隙,清理起來相對方便,不會留下任何衛生死角。加之燈帶、配色射燈、筒燈及部分輔助光的應用,組成的光源比較柔和,同環境光相對匹配,給整體裝飾效果增加一絲靈動。

沙發背景墻用的是米黃色墻布,整體質感比較強。加之金屬線條做了分割,既美觀又不顯單調。白蠟木實木沙發的框架,安全且穩固,擁有極強的承重力。實木柜腳木件之間巧妙的連接,充分保留了原木的紋理美感及自然形態。長方形黑檀茶幾、角幾乃至置物柜的擺設,無形之間充盈著客廳里的中式風韻。

通過借用一部分的陽臺空間,以此打造成茶室區域。金絲檀木茶桌放在這里觀感非常不錯,有種古色古香的氣韻,非常地上檔次??諝庵羞€有淡淡的木香味,摸起來也非常順滑。平時和朋友品著茶、聊著天,述說著歲月的流年,分享彼此的心情。

電視背景墻做的是半懸浮半環繞的石材造型,給人格外驚艷的感覺。石材的厚重與光線的輕盈相輔相成,帶來更多異樣的美感。石材上端區域同樣暗藏著燈帶,整體照明也足夠充裕,實際觀看效果很棒!
餐廳
流動的空間連接著客廳、餐廳、走廊甚至是玄關。在廚房正門口區域,將餐桌位置擺放于此,留出足夠寬敞的行走通道。剩下的區域相應放置了冰箱,實現了空間面積的合理利用。值得注意的是,一側墻面做了鮮艷的圖案裝飾,寒梅傲雪,孤芳自知。

為了保證柜體結構的整體性,餐桌墻也做了一面見光板。以此同玄關柜體銜接起來,剛好增加了餐桌墻的長度,整體顯得較為美觀。加上各種金屬線條及燈光的裝飾,餐廳的顏值獲得大幅度提升。

餐廳家具的擺設簡單但不平凡。魚肚白巖板餐桌+橘色座椅的配置,鮮亮之余更顯大氣。一家人和睦地圍坐吃飯,享受著恬淡的美好時光。
廚房
廚房空間偏小,沒有安裝傳統的門造型,而是做了一個金屬門套,進而提點了廚房視覺空間。廚房櫥柜布局呈U型,相應配置了水槽和灶具,臺面保持同一高度,家里人使用起來方便且舒適。柜面也用到了咖色柜門+金屬線條的組合,光澤度極高,整體造型大氣有牌面。

主臥
走廊過道區域同樣做了類似金屬的造型,顯得格外亮麗。墻面還用大幅裝飾畫進行修飾,增加了整體美觀度。這里主要連接著主臥、次臥及衛生間等空間,彼此之間互有關聯。

通過把一個臥室空間放進來,做成套間的形式,這樣一來增加有效收納空間,業主也獲得了心心念念的衣帽間。除此之外,一定程度上還解決了門對門的風水尷尬問題。臥室墻面均用的是墻布材質,灰色床頭背景墻更是用到黑色線條做分割,既簡單又不顯單調。

主臥通過保留飄窗位置,將其打造成休息區。米黃色的墻布造型還有灰色窗簾的點綴,空氣里彌漫著溫和的味道。為充分利用臥室空間,旁側還設置了專門的梳妝臺區域,方便業主整理面容、化妝打扮。

進門口區域同樣是米黃色的墻布造型,墻上還有業主幸福的結婚相框。往里走,就可以來到最后的衣帽間了。衣帽間由于是臥室所改,所以基本保留了飄窗結構,以此成為換衣凳或休息的場所。兩面超大到頂衣柜,擁有異常豐富的儲物空間,所有的衣物盡可囊括其中。一如既往的咖色亮光柜面,非常地璀璨奪目。
次臥
目前次臥處于閑置狀態,所以沒有做過多的裝飾。窗外實際上是整間房子的晾曬陽臺,內置了洗烘套裝,進一步滿足業主的洗衣需求。通過用薄簾隔擋,保障臥室的隱私性。

臥室墻面還是米黃色的墻布造型,暖色調更讓人沉醉。到頂衣柜,擁有充足的儲物環境。對于這么一個溫馨舒適的睡眠空間,業主感到相當滿意。
衛生間
衛生間空間比較大,并做了干濕分區,相應維護了良好的衛生環境。干區是鏡柜+浴室柜的配置,具有極強的收納能力。緊接著就是馬桶區域,上方懸掛了一個迷你洗衣機,專門用來清洗隨身衣物。懸掛的設計,防止更多地藏污納垢。而淋浴區地面用到石材材質,保留排水槽,愈加方便衛浴生活。

福星惠譽東瀾岸94平北歐風格裝修效果圖
紫郡蘭園75平LOFT 現代簡約風格裝修案例欣賞
保利公園九里現代風格裝修效果圖
置頂—— 知精準報價 避裝修深坑 ——
平均七年以上的設計經驗資深設計師為您服務