項目地址:鵬程天地匯
項目面積:80㎡
項目風格:極簡風
項目施工:山水人家裝飾
工程造價:12w
封面標題:80㎡極簡風,無主燈的設計美出新高度

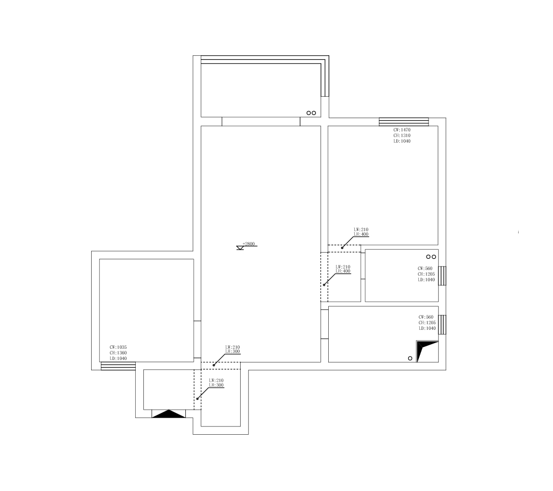
戶型解析
一個人的生活,也可以多姿多彩。本案業主是一位比較潮流的獨居女生,正因為是獨居,所以不存在較大的空間局限與條條框框。一個人的日子只要自己舒服就好。設計上以凸顯家居舒適度及氛圍感為出發點,采用更多的暖色系有效提升居室的溫馨度,并搭配深色系的元素,提點更多的生活氛圍,使整個空間變得愈加活躍。在此基礎上,還加強了家具柔軟性,以此保證了家居造型的美觀與實用價值。

本屋戶型方正,南北通透。主要的改造點在于:(1)由于業主獨居,所以只需要一個臥室格局,于是騰出足夠空間,打造了業主想要的衣帽間;(2)為增加整體空間的利用率,打造了獨立玄關區域,保留更多的生活可能性。(3)連接客廳與陽臺,獲得充足的采光視野及室內使用面積;(4)衛生間有效實現干濕分離,并在干區做了隔斷。

玄關

小戶型也要給足儀式感,入戶玄關被獨立出來,進一步實現了功能分區。兩面均裝有到頂收納柜,灰色所隱含的豐厚質感令人側目。一面是鞋柜,通過留足空間,方便隨手收納各種衣物及鞋類。其中柜體內部還裝了內置式通話機,愈加方便日常生活。另一側則是完完全全的展示收納柜,儲物面積相當充裕。
客廳
客廳整體空間還是相當大的,旨在凸顯居室的舒適感。空間內部通過應用無主燈設計,以此滿足業主在不同生活場景下所需的照明度及氛圍感??蛷d內部采用更多的暖色系軟裝,進一步增強了整體的溫馨度。同時輔以部分深色的元素,相應提點了活躍的氛圍。

沙發背景留白處理,后期可讓業主自選幾幅裝飾畫點綴,整體配色讓空間愈加融洽。搭配著白色科技布沙發,給人的感覺非常地潔凈雅觀。為了獲得更多的客廳活動面積,沒有選擇大的茶幾造型,而是輕巧地應用了黃色角幾,增添更多的生活色彩。與此同時,還用單人的羊羔絨沙發及芝華仕電動沙發呈對坐式擺放,驚艷的墨綠色和愛華仕橙,冷暖之際,給單調的素色帶來更多的新意。

電視背景墻則用到米色的護墻板,板材的選擇及板面的款式都是非常有質感的。下面是木格柵的造型,增添了更多的層次感與美觀度。局部區域做些鮮艷綠植的點綴,不顯沉悶。

藉由打通客廳陽臺,獲得更多活動面積的同時,進一步增強了整體的采光與視野。一側墻面打了到頂的置物柜,其中的閑置區域則用來容納洗衣機等家電。另一側墻面則是打了到頂的家政柜,冷色調的應用點綴了更多家居氛圍感。

餐廳
礙于有限的生活空間,通過巧妙改變餐廳的整體布局,留出了足夠寬敞的通道。流動的空間連接著客廳、餐廳、廚房甚至是玄關。從玄關處走出,便能看到墻面做了一個拱形造型,平添了更多的柔和美。

餐廳墻面用到墻紙的材質,不僅美觀,實用價值也很高。墻面一周甚至用燈帶做了裝飾,在柔和燈光的映照下,墻面逐漸呈現朦朧的美感。頃刻之間,營造出溫馨恬淡的就餐氛圍。

餐廳內部,主要的家具擺設也頗為輕巧。魚肚白巖板餐桌亮光潔面,顯得分外整潔。搭配米色、橘色的餐椅配置,整個空間變得愈加活躍。頂部還用到鋁材+亞克力材質的幾何線條燈,質地更佳,光感更好。
廚房
廚房櫥柜布局呈L型,并相應配置了水槽及灶具,業主使用起來寬敞又方便,有效實現了1+1>2的設計效果。整體柜面設計簡約大氣,用的是膚感膜的愛格板。就連爐灶都是特意挑選的款式,極簡有型有格調。

這里是廚房里的臺盆區。水槽做的臺下盆的設計,方便生活的同時,易于清潔。魚肚白瓷磚搭配頂部的鋁扣板,這天然的白色,品質感與日俱增。
主臥
因為衣帽間獨立了出來,主臥就只保留了休息睡眠的功能,整體面積也變得稍大了些。房間內視野采光也很充足,讓人感到由衷地舒心愜意。同時吊頂也做了一定設計,其間暗藏有燈帶,暖光之下,皆是安寧的樂土。

主臥墻面用到了偏灰色系的墻布,充分彰顯了品質生活的格調。搭配著亮灰色真皮床頭及同色床飾,為純粹睡眠空間完美奠基。業主對于這么舒適的主臥環境,也感到十分滿意。

一般而言,靠近門口的墻面會打上一面柜墻,但由于業主的衣帽間早已獨立出去,柜墻的存在就可有可無了。這樣一來,主臥面積及空間得到進一步釋放。素白的墻面彼此之間相互照應,加上黑色踢腳線及門框的點綴,層次感更強。與此同時,通過添加掛衣架,隨身衣物也能輕易收納。

靠近床頭的部分,還添置了梳妝臺的內容。同周圍的灰白色系相比,梳妝臺自帶的暖棕色調,相應提升了室內的溫馨度。LED帶燈化妝鏡的應用,進一步填充了臥室所需的部分照明。人至此處,自會光彩照人。

衛生間
衛生間通過將干區外置,有效實現了干濕分離。同時為了保障干區美觀、避免尷尬,特意做了隔斷。干區魚肚白臺面+黑色浴室柜的配置,正如周圍墻面的黑白造型,呈現絕佳的視覺效果。除此之外,鏡柜的應用,更是滿足了一定的儲物實需。

通過利用推拉門,有效分隔了淋浴區及馬桶區。濕區整體用到仿大理石紋路的瓷磚,平添了更多的生活質感。與此同時,淋浴區下沉,搭配著黑色防滑地材,完全跟周圍環境區分開來,彼此之間影響極小。
車都春臺里117平現代風格裝修效果圖
保利華都日式原木風格裝修效果圖
武漢恒大首府北歐風格109㎡裝修效果圖案例欣賞
置頂—— 知精準報價 避裝修深坑 ——
平均七年以上的設計經驗資深設計師為您服務