魏蔚 - 首席設計師
入行時間:2009年 年 職稱:首席設計師
項目地址:東湖城
項目面積:115㎡
項目風格:簡約風
項目施工:山水人家裝飾
工程造價:16w
封面標題:115㎡現代風,餐廚布局打破常規,增強家的互動性
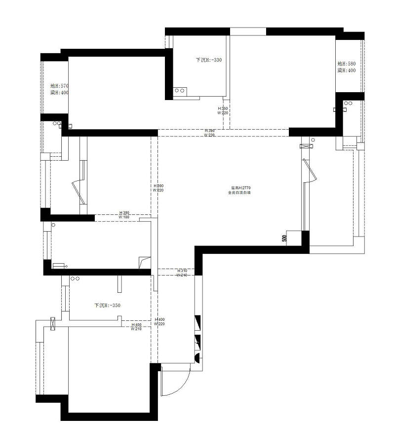
戶型解析
家是讓人汲取溫暖、享受呵護的窩,當我們登堂入室,愛與歡笑便如影隨形。今天家居的主人公是幸福的一家三口,爸爸從事鐵路工作,媽媽全職在家,家里還有一個可愛的女兒。對于裝修,他們對新家的期待就是簡單宜居。設計上不需要太復雜繁瑣,整體要有格調,空間收納要合理。

而設計師通過了解業主的生活習慣,捕捉日常的生活細節,重新規劃了居室動線,顯著增強家的互動性。大量冷暖色系的相織交融,金屬線條的點綴更添濃厚的質感,由此設計出充滿人情味的溫暖居所,體會尋常日子里的豐盈滋味。
房屋信息:三居室,新房裝修。

原始戶型存在的問題在于:
(1)客餐廳空間不大、視野和光線不是很好;
(2)餐廳小,儲物空間有限。

為此,設計師針對具體戶型結構,對其進行相應改造,并結合業主所需,對居室特點進行微調,具體如下:
(1)推掉陽臺門,將陽臺納入到客廳里,相應增加客廳的采光及使用面積;
(2)家里做了一個開放式廚房,整個餐廚空間格局瞬間變大。同時打造吧臺區域,充當隔斷及收納之用。
玄關

步入客廳,需要走過相對狹長的過道,于是整個墻面做了相應的造型設計。一側是卡其色的雙飾面柜體,用以承擔鞋柜的功能。為保持整體的協調性,兒童房房門也用的卡其色配色。另一面墻則是湖藍色墻板+木飾面的配置,品質感自然流露。
客廳
推掉陽臺門,將陽臺融入到客廳里,進一步強化了客廳縱深感,收獲充足的活動面積。整體空間變得愈加寬敞通透,陽光的照射,更顯幾分透亮。

由于業主使用了中央空調,導致吊頂會比較低。選用跌級吊頂的設計,增加了視覺上的層高。同時頂面用金色不銹鋼材質進行了包邊,整體更富層次感。

沙發背景用木飾面包裹,直接延伸到陽臺區域。中間C位則用湖藍色真絲硬包做了跳色處理,無形之間舒緩了身心。搭配簡潔利落的金屬裝飾物,輕松營造出豐富的時尚氣質。

客廳家具的擺設也極具條理,整體做的是圍合式布局。用L型真皮沙發搭配一個橙色單人沙發,冷暖互補,交融出明快時尚的格調。茶幾選用勞倫黑金的方形造型,為空間增添更多的亮點。

電視背景墻采用巖板和木飾面的配置,色彩上的淺淡烘托著空間的整體氛圍。小孩的玩具都整整齊齊地碼在黑色地臺上,視覺上整潔統一。
餐廳
餐廳的燈光往往并不需要過高的照度,但光束的照射需要兼顧餐桌范圍。吊頂周身配有射燈,光感極好。而簡約風格吊燈的選用,三色色溫更是錦上添花,營造溫馨的用餐氛圍。

客餐廳及過道的墻面應用當下流行的墻板+金屬線條,家居線條感十足。不規則的金屬配飾有種別樣的高級感,讓墻面脫離了厚重感。運用到鏡子中,又顯得分外精致。

巖板餐桌不僅有著高顏值,還非常好打理。而且正好擺在暖氣片前,保障了整體的美觀度。搭配皮質餐椅,同墻面配色相呼應,增添更多的美感。一家人圍坐在一起享用美食,更好地增進感情。

在廚房和餐廳之間,借助吧臺做了分區隔斷。石英石臺面外加烤漆柜體組成了吧臺的全部,不僅耐看,儲物收納也極具保障。擺上高腳椅,伴著燈光藹藹,閑適地坐在上面,品味生活的恬淡。
廚房
由于原先的廚房空間過于逼仄,索性做成開放式的空間。整個公共區域被完全打開,彼此之間形成流動的滲透關系。

L型的櫥柜布局,有效實現烹飪區及臺盆區的功能分區。廚房臺面采用不銹鋼,讓空間充盈著工業感。不僅如此,不銹鋼直接和水槽焊接,相應減少臺面縫隙。
白色瓷磚做底色,看上去非常的大氣。墻面同時定制烤漆吊柜,滿足日常烹飪的收納需求。廚房內部還安裝有雙開門的內嵌式冰箱,整體色調更是同柜面、墻面保持一致,呈現干凈整潔的廚房環境。
主臥
舒適淡雅的臥室,墻面鋪貼著各色墻布,讓人覺得心情平和,身心也得到充分的放松。同時借用飄窗空間,打造成化妝區域。搭配上一些柜體,作為展示或收納,美觀又實用。

背景墻中心的灰色硬包與棕色半圓形硬包色彩明暗對比強烈,又給人以視覺沖突,散發著優雅而有溫度的氣場。搭配著木紋地板,品質感不斷升華。床頭及床頭柜的深紅色,更是充滿了熱忱與活力,具有極佳的明視效果。

原先主臥是存在套內衛生間的,但實際應用略顯雞肋,所以直接改成了衣帽間。這也是女業主希望看到的,一個精致的衣帽間,有誰會拒絕呢?

家里有一位漂亮的小公主,她的閨房也充滿著溫馨情調。墻上是一幅壁紙,茂密的森林里萌兔正向大家招手示意!房間同樣利用飄窗,結合正面一面墻,打造了一體式的書桌柜體,儲物收納得到保障,更打造了優良的學習生活環境。
書房
書房面積相對有限,直接做成榻榻米的樣式,既充當客房的功能,又能極致儲物。其中還增加了一個升降桌,一室多用。這里同樣是樂房,看著樂譜彈吉他,消遣又自在。

榻榻米+書桌,木色與白色的套色設計,將墻面空間充分利用。整體高度剛好跟中央空調持平,視覺上減輕不少壓抑感。開放式的置物格子,拿取東西也很方便。
衛生間
衛生間采用的是三分離的設計手法,有效實現了干濕分離。藍色圓形浴室柜大方美觀,表面光滑,將水的張力完美呈現,圓弧狀也不易藏污納垢。頂部暗藏燈帶,保持洗漱時的正常光亮。

借用玻璃護門,將干濕區有效分隔開來。濕區大面積用淺色磚,更顯干凈整潔。沒有多余的裝飾,給人清爽干凈的體驗。
光谷新世界100平輕奢風格裝修效果圖
瑞和華府90平現代風格三室兩廳裝修效果圖
龍湖春江酈城116平現代簡約風格裝修效果圖
置頂—— 知精準報價 避裝修深坑 ——
平均七年以上的設計經驗資深設計師為您服務