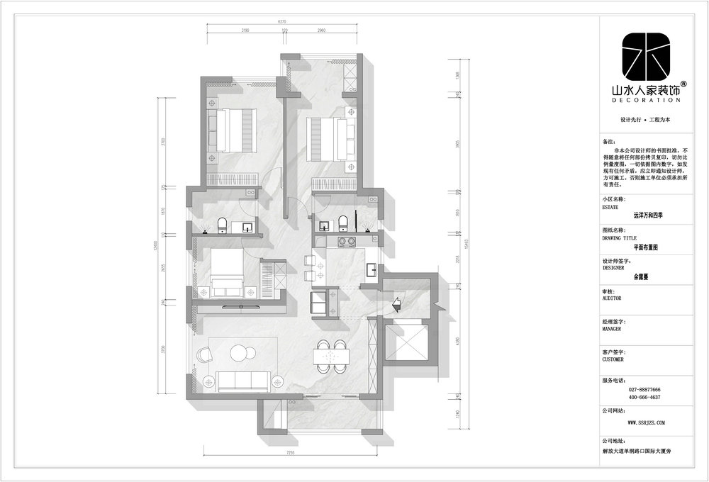
項目地址:遠洋萬和四季
項目面積:130㎡
項目風格:現代風
項目施工:山水人家裝飾
工程造價:16w
封面標題:130㎡現代風,干凈優雅的醫生之家

簡單自然是一種純粹的生活態度,每個人都渴望變得輕松自在一些。作為一個醫生之家,沒有過于繁雜的裝飾設計,主要由心出發,以此探尋自己居家的生活樂趣。本案業主是一個三口之家,夫妻倆都是醫生,工作相對而言比較忙碌,因而希望自己的家是個寧靜舒適的居所。通過應用優選建材與自然顏色的結合,營造出溫馨恬淡的生活氛圍。對于業主而言,家更多成為一個療愈自我的地方。

房屋信息:四室兩廳一廚兩衛,新房。
業主需求:因為這是個醫生之家,他們喜歡干凈優雅的色系,整體布局也要盡可能地整潔自然。

本案房型相對細長,長進深,小面寬。為獲得極佳的規劃布局,特意做出如下調整:
(1)進門增設了玄關,使入戶變成雙動線,使客餐廳空間更具私密性;
(2)原始方案中廚房比較小,放完冰箱后,廚房的操作臺面幾乎所剩無幾,所以專門給冰箱騰出位置,以此擴大了廚房空間;
(3)玄關柜與冰箱工字相隔,妙用廚房一側作為吧臺,滿足業主更多的生活需求。


進門增設了玄關,使入戶變成雙動線,雙拱形門的設計,進一步增強空間層次感。吊頂同樣做了造型設計,搭配著內部射燈,光感較好。這里用到黑白雙色的玄關隔斷柜,擁有較大的儲物空間,可調節隔板設計,合理收納各種生活用品。金色加厚磨邊拉手升級手感,愈加得耐用省心。上面還有著優秀皮革的裝置藝術,借此解構空間的平凡乏味,打造出獨特玄關的別致風格。

客廳陽臺被納入室內,使空間視野變得更開闊,采光更通透。陽光在空間里充分駐足,打造出溫馨美好的公共環境??筒蛷d一體式空間的布局,整體開闊通透,格局相對大氣。硬裝部分簡潔利落的裝飾線條,輕松營造出現代簡約的生活氣質。

沙發背景墻用到了進口藝術漆,選用的也是干凈優雅的色系。尤其是在靠窗處描了一個拱形圖案,增添更多的趣味性。這樣一來,很好地弱化了暖氣管的突兀感,整體空間純粹且自然。

兼顧實用與空間美學的弧形沙發,以優雅的形態塑造空間。米色柔和的色調,充分彰顯了格調生活的精髓。巖板茶幾的應用,高低錯落的設計,極大地節省到空間。亮面銀的臺面外加勞倫金的底座,整體顏值更上一個高度。搭配上線條流暢的千鳥格單椅,棉麻布料的材質,質感頗為細膩。

電視背景墻則用到定制波浪板,造型美感非常地獨特。后面則暗藏燈帶,增加更多的空間層次感。旁側同樣做了定制的展示柜,跟地臺連為一體,擁有充裕的收納空間。里面擺放了大量精美裝飾品,在感應燈帶的映照下,顯得熠熠生輝。

走過左邊的拱門,則來到家里的客餐廳空間,私密性得到進一步加強。靠墻直接打了一面餐邊柜墻,收獲大量的收納空間?;疑w感膜的柜面,觸感極好。鞋柜區域甚至安裝有全身鏡,方便隨時瞻仰面容。

精致的生活狀態,從美好的用餐時光開始。家里是一組方形的巖板餐桌,觀感、質感相輔相成。搭配著米色布藝餐椅,與客廳的配色相互呼應,增強了空間的統一性。

由于原始方案中的廚房比較小,所以把冰箱給騰了出來,以此擴大了廚房空間。現在的冰箱與玄關柜工字相隔,絲毫不阻礙整體視野。同時利用廚房一側作為吧臺,滿足更多的實際生活需要。

借助一定的巧思遐想,對吧臺區域進行了行之有效的改造。一側墻面用棕色墻紙加以點綴,顯得格外清爽可人。這里頗有一種酒吧吧臺的感覺,超高臺面搭配兩把高椅,雙人對飲談心,氛圍感極強。

玄關拱形門的另一邊就是純粹的廚房了,進一步維持了安靜的烹飪氛圍。即便廚房面積相對有限,但借助U型櫥柜的合理布局,充分彰顯了溫馨簡單的生活格調。各區域分布有致,完美貼合業主的烹飪動線。

廚房通過選用膚感膜材質的灰色底柜及白色吊柜,以此增加空間的層次感。再加上白色臺面的渲染,顯得格外光亮潔凈。整體結構設計也完全遵循業主的烹飪需求,下廚自然而然變成一件非常享受的事情。

通過將北陽臺空間納入到主臥,進一步增加了主臥的使用面積。整體采光視野相應強化,作為晾曬兼休閑陽臺非常地合適。窗簾則用桔色做了跳色,給人一種耳目一新的感覺。

主臥地面通鋪著實木地板,質地柔和細膩。墻面則用到藝術漆,肌理多變,讓單調的墻面更顯層次感,可塑性也更強。再加上主臥的風格以輕便簡約為主,由此打造出溫馨甜美的居家環境。
靠近主臥門口,則做了一面到頂衣柜墻。由此一來,剛好滿足了業主實際存在的收納儲衣問題。尤其在一側做了隔架造型,方便放置一些可隨手拿放的生活物品。

與此同時,還在床體及柜體之間打造了業主專屬的梳妝臺區域。白色臺面上各種琳瑯滿目的化妝品工具,搭配著圓鏡,配置可謂是齊全完備。桔色梳妝凳是買床附贈的產品,剛好跟窗簾是一個顏色,愈加活躍了室內空間。

兒童房的設計風格比較輕松隨意,這也挺符合小孩子的心性。房間里也沒有做過多的布置準備,后期的話會將書桌書椅安排上。頂部吊頂潔白如素,主要安裝著彩色星空燈,眼之所及,皆是燦爛的星河。

兒童房墻面用到灰色藝術漆,跟周圍白色的環境相互照應??看耙粋韧瑯哟蛄说巾數墓駢?,儲物功能極強。除此之外,還在各處用橘色做了跳色,無論是床頭、床尾、床頭柜還是窗簾,鮮亮的色彩永遠引人注目。


通過合理規劃出衛生間的具體布置,進而滿足業主各方面的衛生洗浴需要。鏡柜+洗漱臺的布置,整體功能性極強。又因為是公共衛生間,為方便來往客人使用,用到了蹲坑。衛生間整體鋪貼著淺棕色瓷磚,以此維護著干凈整潔的衛生環境。

硬裝; 160000元
主材:67000元
半包:58000元
木工:35000元
軟裝家具:
星空網紅燈 489元
巖板茶幾 799元
勞倫金+亮面銀
極簡布藝沙發 4680元
千鳥格沙發單椅 538元
黑色玄關隔斷柜1897元
匯悅天地85平現代風格裝修案例效果圖
常青花園輕奢風格裝修效果圖
遠洋漢口中心92平現代風格裝修效果圖
置頂—— 知精準報價 避裝修深坑 ——
平均七年以上的設計經驗資深設計師為您服務