武漢
家裝服務熱線 400-666-4637
當前位置:首頁 >裝修案例 >案例詳情

金科城現代風格裝修效果圖

來源:山水人家裝飾 瀏覽人數:1179次 更新時間:2022-05-03

作品信息

  1. 現代 案例風格
  2. 109平方米 房屋面積
  3. 14.7萬 參考造價

作品詳情

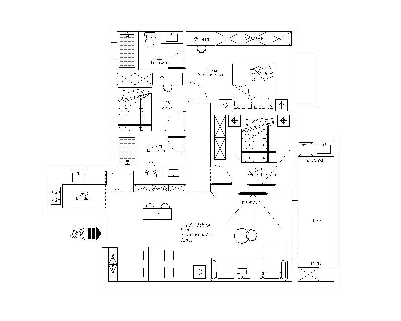
拿到這個案子的時候,感覺整體戶型較好。就是進門廚房那一塊墻體有點突兀。感覺進廚房比較繞,對進門口的空間有擠壓的感覺。而廚房空間整體顯長,比較浪費。


綜合考慮后,決定拆除原進門左邊廚房墻體。把這塊空間化為餐廳部分。原本廚房進門處也只是屬于進廚房的過道。而現在這塊位置屬于公共空間。改造后,進廚房動線比較方便,餐廳整體布局顯得更正氣。進門感覺會大不一樣。



金科城現代風格裝修效果圖


金科城現代風格裝修效果圖


金科城現代風格裝修效果圖


金科城現代風格裝修效果圖


金科城現代風格裝修效果圖


金科城現代風格裝修效果圖

TAG標簽: 陳豪 金科城 現代風格

陳豪 - 高級主任設計師

入行時間:2011年 年 職稱:高級主任設計師

算一算

我家裝修需要多少錢?

173739
m2

猜你喜歡

查看更多 >>
置頂

免費報價量房

×

算一算,你家裝修要花多少錢?

—— 知精準報價 避裝修深坑 ——

您的報價已生成完畢

  • 材料費用:21000
  • 人工費用:39000
  • 設計費用:0
  • 管理費用:0
×

預約您的設計師

平均七年以上的設計經驗資深設計師為您服務

您的稱呼:
手機號碼:
裝修小區:
房屋面積:
* 為了您的權益,您的一切信息將被嚴格保密
×

預約線下參觀

您的稱呼:
手機號碼:
* 為了您的權益,您的一切信息將被嚴格保密