劉佳怡 - 高級主任設計師
入行時間:2015 年 職稱:高級主任設計師
項目地址:書院世家
項目面積:300㎡
項目風格:現代簡約風
項目施工:山水人家裝飾
工程造價:60w
封面標題:300㎡現代簡約風,地下一層的快樂你想象不到

本案業主是一個大家庭,上有老,下有小,其樂融融,幸福美滿。因為家里人口比較多,每個人對家里的居住功能有著不同的需求。老人圖方便、小孩想熱鬧,業主也想有更多休閑娛樂的空間。于是設計師量體裁衣,將四層小樓重重拆解,每一層賦予其專屬的功能與內容,以此更貼近業主的實際生活。全屋貫徹簡約風,多以白色及有質感的色彩為主??臻g寬而大,家具擺放精挑細琢,以簡為美,帶來極佳的視覺效果。

一樓是社交娛樂的場所,主要包括門廳、客廳、餐廳、廚房和父母房。整體空間非常寬敞。為防止老人過渡走動,特意將臥室放在一樓,體現裝飾美的同時,不忘功能性。

從二樓開始,就是私密的個人房間。二樓主要是兒童房、次臥及書房。兒童房內部設置有衛生間,同時還有一個小陽臺,用作休憩之便。

三樓就是全房的主臥了,集臥室、衣帽間、衛生間于一體,極致滿足業主的各項需求。同時一側還布置了觀景露臺及洗衣房,兼具家居顏值和實用性能。

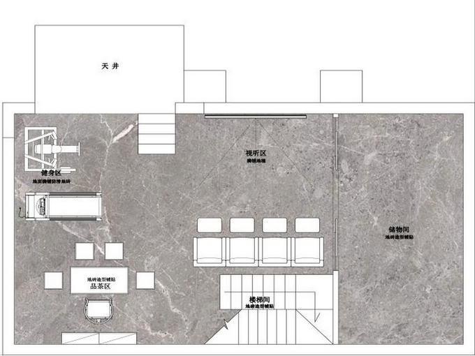
地下一樓則是主要的休閑娛樂場所。主要包括健身區、品茶區、視聽區和器樂區等。業主能夠在這里享受閑暇的休閑時光。

一樓客廳空間極大,擁有豐富的活動范圍。整體采光相對優良,獲得極佳的室內視野。吊頂處安裝了中央空調,方便家里人吐舊納新。

客廳里的家具擺件貫徹簡約的風格?;疑妓嚿嘲l搭配兩把單人座椅,還有橘色小邊幾作襯。方形茶幾的背后,是規整家具布局的縮影。

靠近落地窗的區域,能夠盡情瞻仰屋外的光景。這里同樣屬于親子互動區,方便彼此交流感情。沒有所謂的磕磕角角,滿地打滾也是悠然自得。

電視墻的背景是魚肚白墻瓷+木格柵的配置。旁邊還裝了黑色展示柜,放置一些精美的裝飾物。用地臺取代電視柜,既簡練又好看。

餐廳做的開放式布局,離客廳、廚房很近。隨便輕呼幾句,便可以引來諸多家人到此。風格延續客廳的樣式,整體氛圍極佳。

餐廳的一側還做了吧臺的設計。這一定程度上實現了中西廚分離,柜體里同樣內嵌了烤箱。午早餐、下午茶乃至晚甜點時間,都可以在這里瞧見業主幸福的微笑。

餐廳的具體擺設也足顯氣質。大理石臺面的餐桌輕易容納多位客人,坐著吃飯穩穩當當。一家人推杯換盞,豈不樂哉。

餐廳與客廳之間,用黑色大理石做了吊頂造型。一來是用作裝飾,二來是有效分區,增加整體層次感。值得注意的是,餐廳這里同樣連接著各處樓梯,吃完飯便能夠輕易地移步上下樓。

廚房櫥柜的整體布局呈U型。臺盆區、炒菜區及操作臺等分布合理,互不干擾。過道空間非常寬敞,行走非常方便。

這里是廚房里的操作臺,也是上菜區。淺咖色的底柜及臺面,在燈光的映照下,非常地養眼。吊柜也有著豐富的儲物空間,所存的物品在黑色玻璃背后若隱若現。

同時靠門區域設置了一面到頂柜墻。冰箱做了隱藏式設計,嵌在其中。不知道的人還以為廚房里面擺了一個衣柜呢~~

主臥整體空間很大,開窗視野相當不錯。背景墻用的奶咖色乳膠漆,給房間打下溫潤的基調。綠色床頭的應用,更顯一份淡定與適然。

主臥另一側墻面還是簡簡單單的白色,跟周圍環境相互應襯。專門在這里放了彩電,滿足業主一定的娛樂需求。再加上買了風管機,做了吊頂,并相應安裝了到頂衣柜,顏值與功能兼備。

臥室內側還有一個小空間,這里是業主的衣帽間兼梳妝臺。衣柜墻做了一個弧形設計,增加一定美觀度??繅Φ膮^域則是梳妝臺,特別地精致小巧。

次臥背景墻用木飾面修飾,顯得非?;顫婌`動。旁邊還做了木格柵,增加整體質感。吊頂也做了充分的設計,內藏各種燈帶,保持整體空間的光亮。

房間里還裝了一個投影儀。一來是跟電視相比不占地方,二來還滿足業主觀影的需要。窩在被窩里,看場電影,簡直不要美滋滋!

兒童房同樣以簡約風格呈現,房間里滿是潔凈的白色。床體買的桔色,充當一個跳色,愈加活躍室內空間。墻面還掛著精美的裝飾畫,不禁讓人浮想聯翩。

孩子的房間自然少不了學習區。字畫之下,是房間的書桌區,孩子一般都在這里寫作業搞學習。里側的小空間則是陳列區,滿滿當當的書柜里藏著豐富的知識。

300平的大house里,還有著地下室的存在。這里可以說是天然的樂園,樂器房、茶室、觀影區依次坐列,各種休閑設施應有盡有。業主酷愛架子鼓,沒事的時候喜歡耍上一耍。

全房通鋪灰色瓷磚,增加整體層次感。萬籟俱寂的時候,其實很適合看電影。窸窸窣窣間,增添更多生活情調。

臨近室外的空間,是主要的茶室區域。不僅有著充裕的采光,動線也格外優越。喊上摯朋親友,品茗聊天,度過閑暇的時光。

衛生間主要做了干濕分離,極佳保障優良的衛生環境。整間通鋪灰色瓷磚,顯得非常潔凈自然。干區布置較為簡便,凸顯的就是一個舒適度。

濕區方面,則用塑膠門進行隔擋。馬桶區和淋浴區分隔開來,各自互不影響。地面還設置了擋水條,進一步防止水流外泄。


裝飾性極強的水晶吊燈將整個家的氛圍感拉滿,仿佛舉辦舞會的宴會廳,樓梯也成為每個鄰居和親戚來家里必夸的設計之一,最主要的,除了顏值還很實用,樓梯連接整棟別墅,明亮的燈管讓這里變得更精美,上下樓更便利的同時,增強居家樂趣。
錦繡龍城新中式風格裝修效果圖
城建信達后湖里82平奶油風格裝修效果圖
東原啟城北歐風格裝修效果圖
置頂—— 知精準報價 避裝修深坑 ——
平均七年以上的設計經驗資深設計師為您服務