李濤濤 - 主任設計師
入行時間:2013 年 職稱:主任設計師
案例名稱:帝斯曼
案例風格:現代風格
案例戶型:板樓
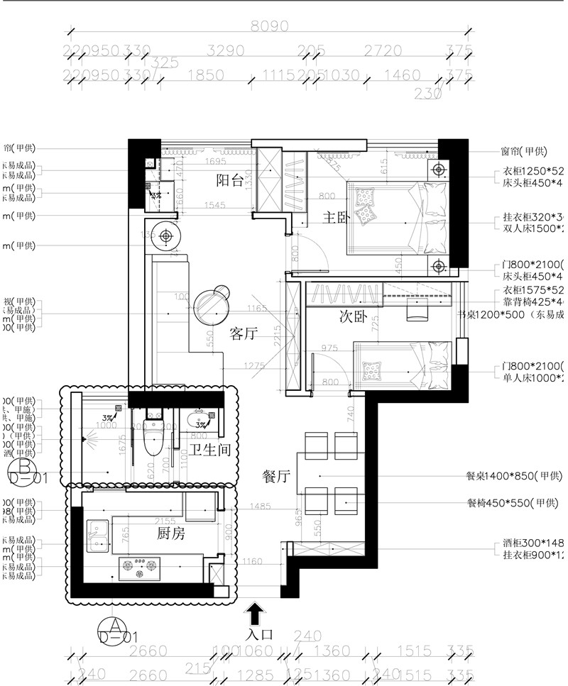
房屋平數:70平方
房屋位置:洪山區 武珞路
房屋類型:平層
空間格局:客廳、餐廳、廚房、主臥、次臥、觀光陽臺
主要建材:?;u、大理石、馬賽克、實木線條、藝術涂料、實木成品柜、仿古磚、強化復合地板、乳膠漆
設計理念:在設計之初就考慮到做木色系現代簡約設計風格,希望能做出一個獨特的韻味出來??蛷d作為待客區域,要求簡潔明快大氣。在色彩描配上主要以淺灰色調為基礎,運用了藝術涂料,表現出簡單明亮的感覺,在墻面上運用了略抽象,冷色系的裝飾畫,散發出質樸的自然氣息和寬敞舒適的感覺。整體簡約,大氣,接近大自然。電視背景與主臥之間運用了裝飾柜作為隔斷,解決了儲物空間,也使電視背景表現了簡約時尚又不失材質的質感,柜門是烤漆工藝,明亮精致。主臥室是無主燈設計,四個雙頭斗膽燈承接了整個房間的燈源,分布均勻,代替了主燈,原墻面藝術涂料效果,墻面床頭背景運用深淺與原墻面對比,既是一個色系,也有主次之分,作為主人的私密空間,主要以功能性和實用舒適為考慮的重點,多用溫馨柔軟的成套布藝來裝點,同時在軟裝和用色上形成了統一。





















中建御景星城簡歐風格裝修效果圖
復地東湖國際四期136平輕奢風格裝修效果圖
中建大公館101平現代風格裝修效果圖
置頂—— 知精準報價 避裝修深坑 ——
平均七年以上的設計經驗資深設計師為您服務