武漢
家裝服務熱線 400-666-4637
當前位置:首頁 >裝修案例 >案例詳情

華僑城115平現代簡約風格裝修效果圖

來源:山水人家裝飾 瀏覽人數:1626次 更新時間:2021-01-26

作品信息

  1. 現代 案例風格
  2. 115平方米 房屋面積
  3. 13.8萬 參考造價

作品詳情

華僑城115平現代簡約風格裝修效果圖



客廳效果圖



華僑城現代簡約風格裝修效果圖



客廳實景圖


華僑城現代簡約風格裝修效果圖



餐廳效果圖


華僑城現代簡約風格裝修效果圖



餐廳實景圖


華僑城現代簡約風格裝修效果圖



效果圖


華僑城現代簡約風格裝修效果圖



實景圖


華僑城現代簡約風格裝修效果圖



效果圖


華僑城現代簡約風格裝修效果圖



實景圖


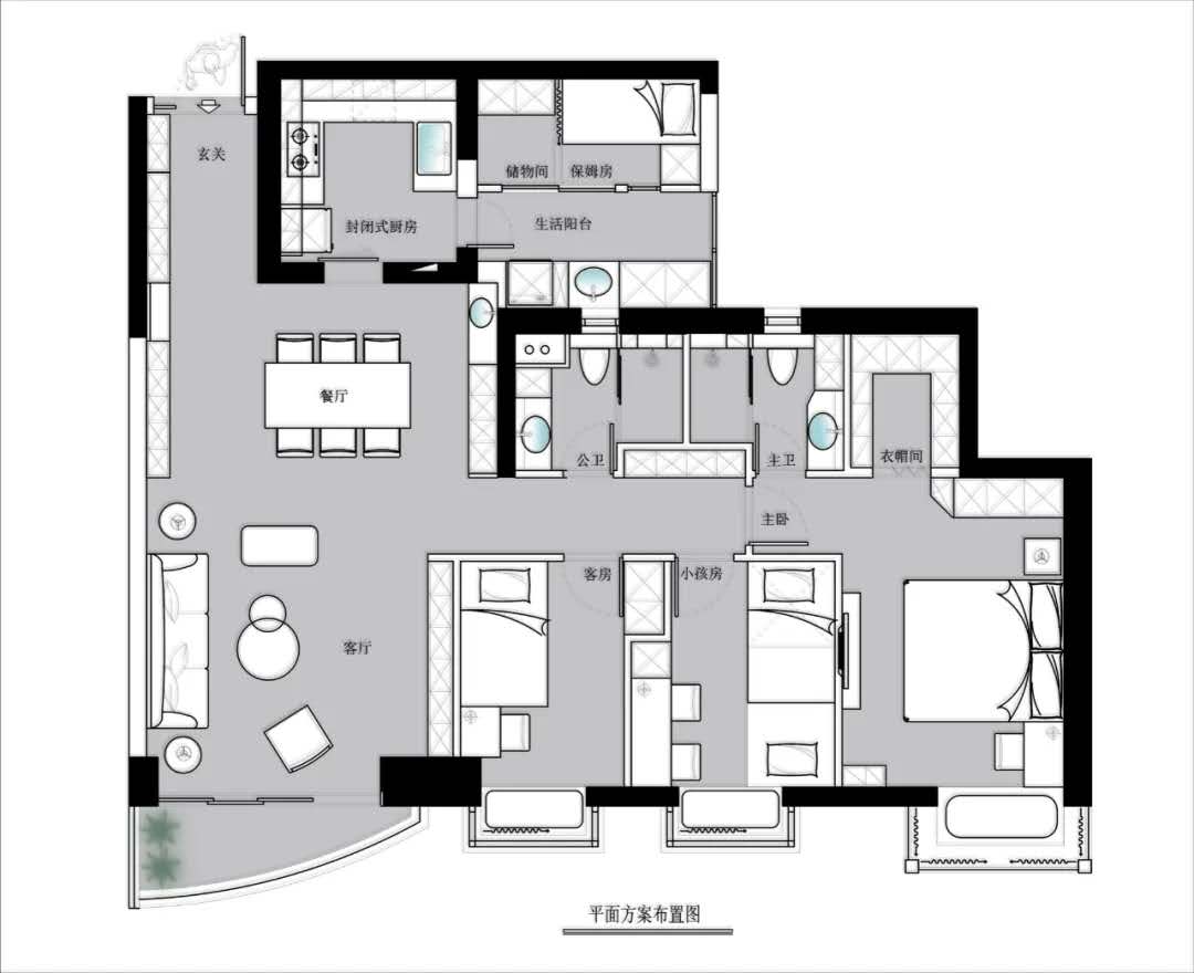
華僑城現代簡約風格裝修效果圖



平面設計圖


華僑城現代簡約風格裝修效果圖

TAG標簽: 華僑城 陳磊 現代簡約風格

陳磊 - 首席設計師

入行時間:2007 年 職稱:首席設計師

算一算

我家裝修需要多少錢?

173739
m2

猜你喜歡

查看更多 >>
置頂

免費報價量房

×

算一算,你家裝修要花多少錢?

—— 知精準報價 避裝修深坑 ——

您的報價已生成完畢

  • 材料費用:21000
  • 人工費用:39000
  • 設計費用:0
  • 管理費用:0
×

預約您的設計師

平均七年以上的設計經驗資深設計師為您服務

您的稱呼:
手機號碼:
裝修小區:
房屋面積:
* 為了您的權益,您的一切信息將被嚴格保密
×

預約線下參觀

您的稱呼:
手機號碼:
* 為了您的權益,您的一切信息將被嚴格保密