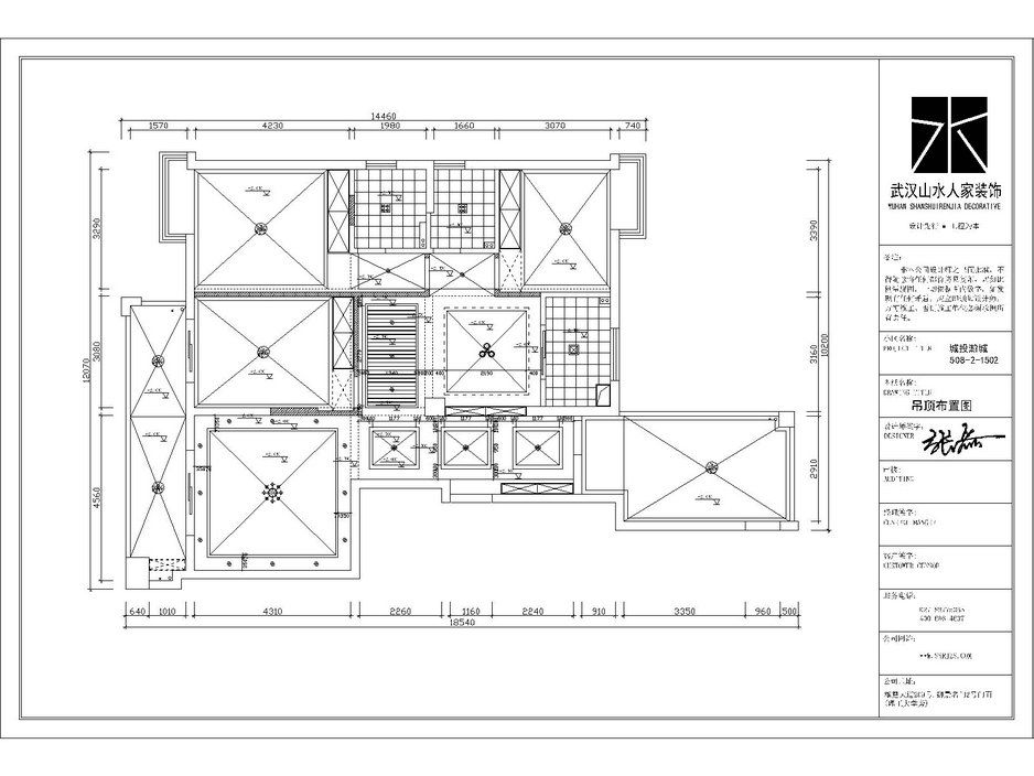
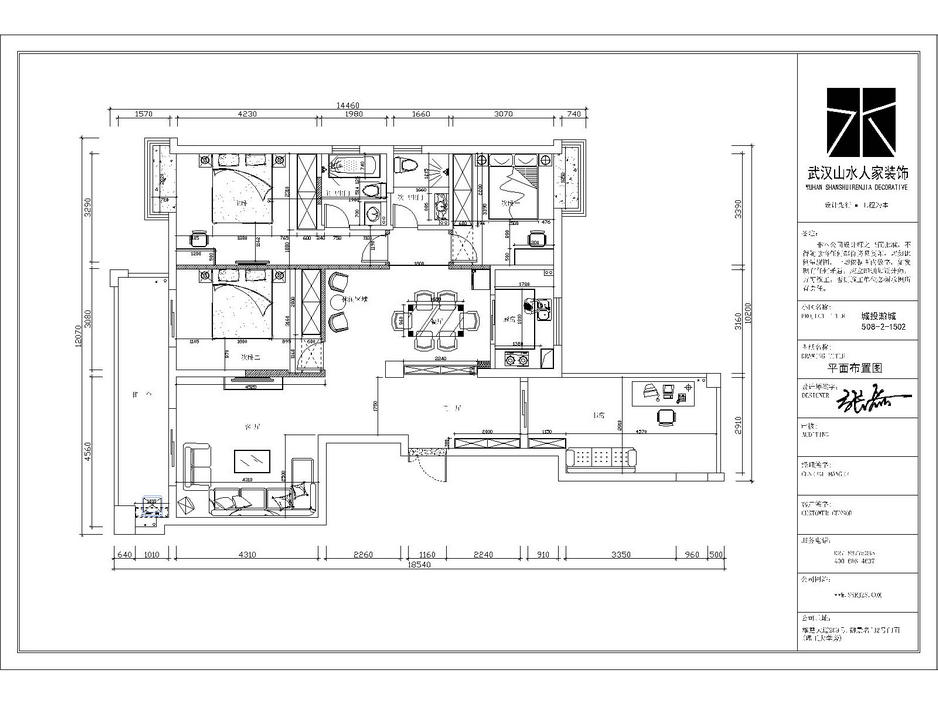
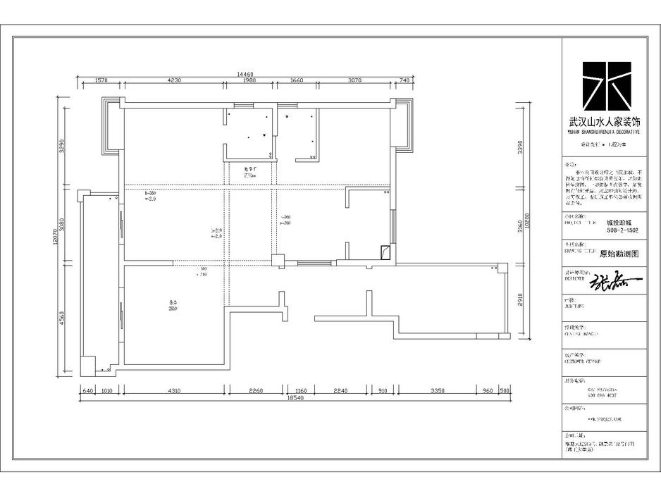
本案是一套四室兩廳兩衛的居室,套型建筑面積160多平方米,使用面積約138平方米。設計風格以歐式風格的表現形式為主。
業主是一位35歲左右成功男士,注重生活品味和生活質量,在溝通之初就在中式和歐式風格間猶豫不決,考慮到家庭成員的意見,在我建議下選擇了歐式風格,歐式的居室有的不只是豪華大氣,更多的是愜意和浪漫。通過完美的典線,精益求精的細節處理,帶給家人數不盡的舒服觸感。
歐式的居家環境無論是家具還是配飾均以其優雅、唯美的姿態,平和而富有內涵的氣韻,描繪出居室主人高雅、尊貴的身份。整個設計方案的主色調為暖色,暖黃色的地板和燈光糅合白色家具和護墻板,使色彩看起來明亮、大方。
本設計采用多元化的思考方式,通過完美的典線,精益求精的細節處理,營造出了一個有趣的居家空間。














健龍果嶺公元120平簡歐風格裝修效果圖
新港臨江匯101平法式風格裝修效果圖
國彩光立方三室兩廳104平美式風格裝修效果圖
置頂—— 知精準報價 避裝修深坑 ——
平均七年以上的設計經驗資深設計師為您服務