武漢
家裝服務熱線 400-666-4637
當前位置:首頁 >裝修案例 >案例詳情

北大蓮湖錦城美式風格裝修效果圖

來源:山水人家裝飾 瀏覽人數:1416次 更新時間:2021-01-26

作品信息

  1. 美式 案例風格
  2. 103平方米 房屋面積
  3. 12萬 參考造價

作品詳情

設計師整體以淺色調為主,搭配現代美式風的家具和軟裝,來構造出這樣一個優雅大方的居住空間,把現代大方與美式典雅結合起來,讓人羨慕不已。
客廳的沙發和茶幾都是選擇了現代美式風格的,沙發背景墻上擺放了掛畫和掛鐘,整個客廳給人一種簡潔大方與優雅端莊結合的感覺。
廚房內部做了L型的櫥柜,墻面鋪貼灰色系的長條磚,地面鋪設木地板,整個廚房以白色。木色與灰色結合,構造出一個輕松、自然的烹飪空間。。。

北大蓮湖錦城美式風格裝修效果圖



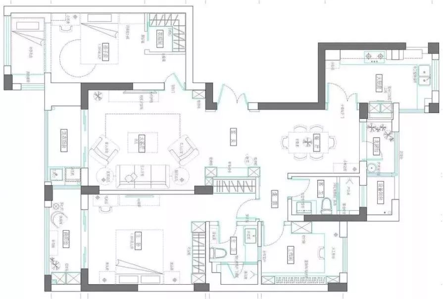
平面設計圖



北大蓮湖錦城美式風格裝修效果圖



玄關


北大蓮湖錦城美式風格裝修效果圖



客廳


北大蓮湖錦城美式風格裝修效果圖



客餐廳


北大蓮湖錦城美式風格裝修效果圖



餐廳


北大蓮湖錦城美式風格裝修效果圖



廚房


北大蓮湖錦城美式風格裝修效果圖



臥室


北大蓮湖錦城美式風格裝修效果圖



臥室二


北大蓮湖錦城美式風格裝修效果圖



書房


北大蓮湖錦城美式風格裝修效果圖



衛生間


北大蓮湖錦城美式風格裝修效果圖

TAG標簽: 北大蓮湖錦城 阮攀 美式風格

阮攀 - 高級主任設計師

入行時間:2012 年 職稱:高級主任設計師

算一算

我家裝修需要多少錢?

173739
m2

猜你喜歡

查看更多 >>
置頂

免費報價量房

×

算一算,你家裝修要花多少錢?

—— 知精準報價 避裝修深坑 ——

您的報價已生成完畢

  • 材料費用:21000
  • 人工費用:39000
  • 設計費用:0
  • 管理費用:0
×

預約您的設計師

平均七年以上的設計經驗資深設計師為您服務

您的稱呼:
手機號碼:
裝修小區:
房屋面積:
* 為了您的權益,您的一切信息將被嚴格保密
×

預約線下參觀

您的稱呼:
手機號碼:
* 為了您的權益,您的一切信息將被嚴格保密